Rainbow House: da abitazione tradizionale a casa dei divertimenti

In una delle strade più rinomate di Londra, zona Portobello Road, è nata la casa più divertente della Gran Bretagna: una struttura arcobaleno multi-color a cui si accede tramite uno scivolo nel soggiorno, in modo che quando si entra, si offre una fuga magica dalla realtà frenetica. Il divertente progetto è opera del designer AB Rogers, in collaborazione con DA.Studio, che ha creato un pezzo d'arte vivente. Questa casa di quattro camere da letto è una vetrina incredibile di design contemporaneo.

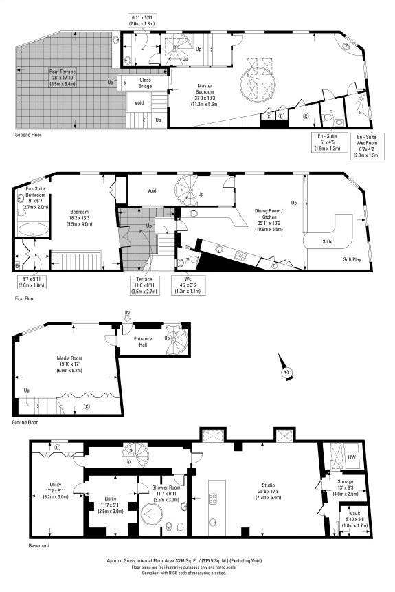
"L'intento era quello di trasformare una casa di quattro piani su una strada trafficata di Londra in uno spazio magico e liberatorio che sfida le consuetudini di un ambiente interno domestico e permette agli occupanti di lasciare il mondo esterno lontano". Tutta la casa ruota attorno alla scala arcobaleno, una struttura complessa su misura in fibra di vetro e acciaio, che riempie la spazio con il tutto il colore che sale verso l'alto e un caldo divano giallo nello spazio principale aggiunge un ulteriore tocco di allegria. L'elegante spazio cucina/sala da pranzo a pianta aperta offre elettrodomestici completamente integrati e un luogo fantastico in cui intrattenere gli ospiti. La Casa Arcobaleno, nell'elegante quartiere di Portobello Road a ovest di Londra, è stato ora messa in affitto per 3.500 £ a settimana, ciò significa a £ 15.000 al mese, che è 20 volte il costo medio di locazione nel Regno Unito.

Come un giocattolo meccanico, la casa è piena di movimento: il letto matrimoniale ruota di 360 gradi in modo da poter guardare fuori attraverso le varie aperture della stanza; lo scivolo offre un percorso super-veloce tra il piano superiore e quello inferiore; il divano ha una sezione centrale che può salire e scendere come se provenisse direttamente dalle pagine di un libro di fiabe; i pavimenti sono una fantastica illustrazione dipinta su tavole di legno, opera dell'artista Richard Woods. Inoltre, vi è una camera studio intelligente con annesso bagno con doccia, una camera da letto ospiti con bagno privato, una sala multimediale e un fenomenale giardino sul tetto con vista a 360 gradi su tutta Notting Hill. Nella camera da letto matrimoniale, un letto circolare ruota in posizione in modo che si può guardare fuori qualsiasi finestra. Una botola nel pavimento si aprirà per rivelare lo scivolo sfrecciare verso il soggiorno sottostante. Anche nel giorno più grigio di Londra, l'interno della Rainbow House sarà luminoso.


